+52 322 409 8930
       
PV Gold Real Estate
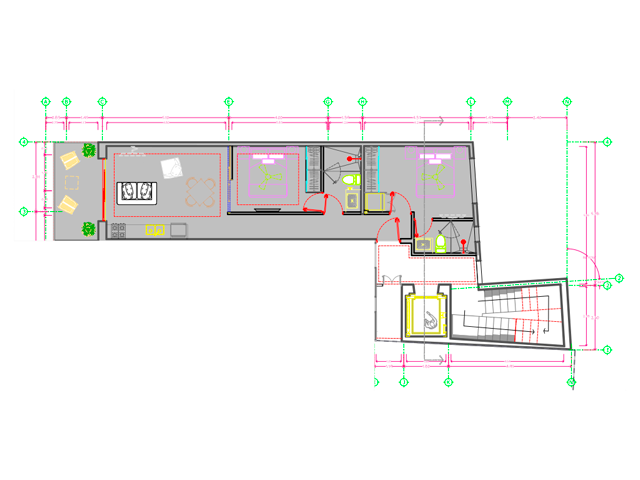
Condo Pilitas South
Pilitas South Puerto Vallarta Romantic Zone, Pilitas 212 - Condo 102

Living space

Room 102
Size: 69.76 m2 / 750.89 SQ FT
Bedrooms: 2
Bathrooms: 2
Floorplan Level: 1st
Living & dinning Yes
Kitchen Yes
Laundry Yes
Terrace Yes
Price: $ 335,00.00 USD

Home Details

GRANITE IN KITCHEN
BATH VANITY TOPS
LAVATORY (WHITE IDEAL STANDARD BRAND OR SAME)
FLOOR TILES-PORCELANITE 60X60 CMS OR SIMILAR
TILE IN BATHS-INTERCERAMIC 20X20 CMS OR SIMILAR
DOORS BRAND - TROPICAL WOOD WITH LACQUER FINISH OR SIMILAR
DOOR HARDWARE-YALE OR SIMILAR
KITCHEN CABINETRY TROPICAL WOOD.
WINDOWS AND SLIDERS-WHITE ALUMINUM 3 INCHES. W / CLEAR GLASS 6MM.
AIR CONDITIONING-TYPE-MINI SPLIT.
SHOWER IN MASTER BATH.
ON TERRACE GLASS RAILING.
WC-WHITE BRAND ORION OR SIMILAR.
PLUMBING FIXTURES-MOEN BRAND OR SIMILAR.
BATH ACCESSORIES ALL CHROMED MOEN BRAND OR SIMILAR.
STOVE AND OVEN STAINLESS STEEL 4 BURNER GAS.
STOVE HOOD WITH MICROWAVE STAINLESS STEEL.
WATER HEATER ON DEMAND OR SIMILAR.
PRESSURIZED WATER SYSTEM THROUGHOUT BLDG


Features

Infinity pool  Elevator  Laundry Area  Electric door main entrance  Parking 


Gallery


About Us

40 year experience in construction, selling and as a consultant. Our staff is affluent in Spanish and English and anxious to assist you and answer any questions you may have in buying or renting in Puerto Vallarta.

logo PVGOLDREALESTATE

Property Rentals...


properties for sale...


Follow us